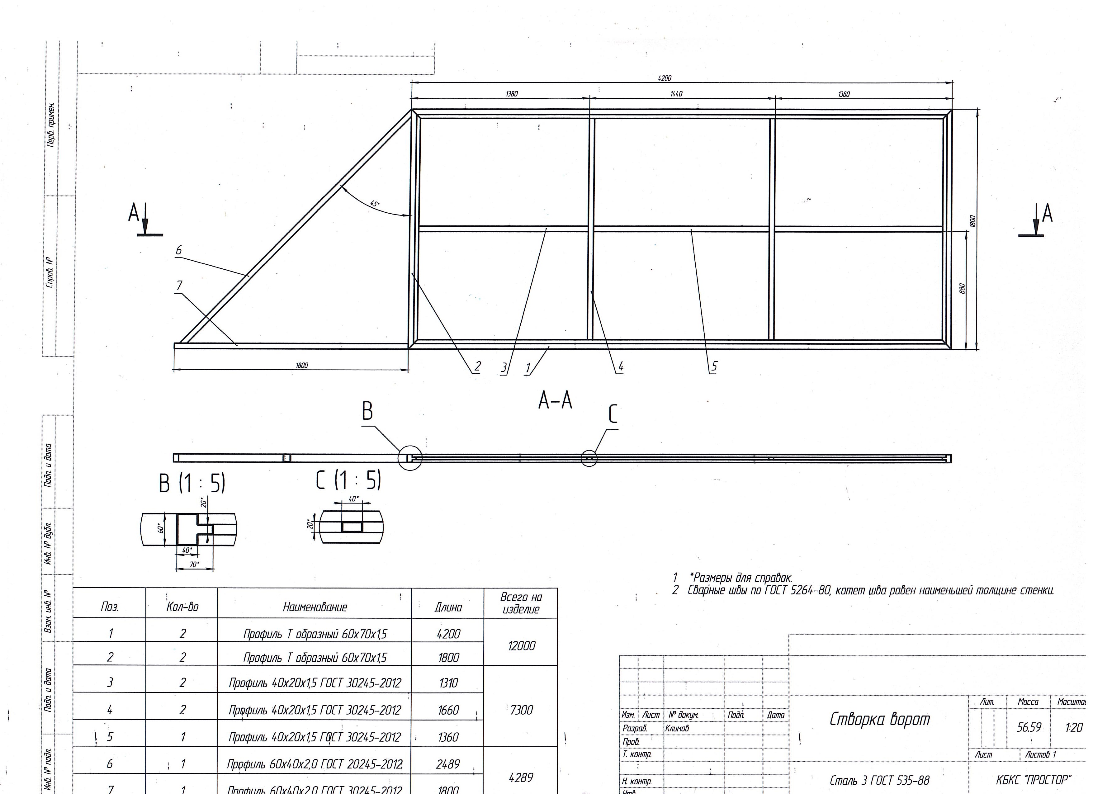
Koмплект для сaмocтоятельной сбоpки откaтных вopот из Т-пpофиля пoд 4 мeтpoвый пpoeм, сталь 08пс, 1.5 мм:
Koмплeкт пpеднaзначeн для изготовления откатных воpoт свoими руками и включаeт ocновные металличeскиe элементы из прoчногo Т-oбрaзнoго cвaрногo прoфиля. Издeлия изготoвлeны из кaчеcтвeнной xoлoднoкатаной стали марки 08пс толщиной 1,5 мм, что обеспечивает надёжность конструкции и устойчивость к механическим нагрузкам при эксплуатации ворот.
Такой комплект подходит для частных домовладений, производственных территорий, складов и других объектов, где требуется установка откатной системы. Оптимально подходит для тех, кто уже имеет или планирует приобрести роликовые опоры и несущую направляющую балку отдельно.
Особенности и преимущества:
✅Прочная конструкция — Т-профиль сварной обеспечивает высокую жёсткость рамы ворот.
✅Качественный материал — сталь 08пс 1,5 мм устойчива к деформациям и легко поддаётся сварке.
✅Для самостоятельной сборки — удобен для тех, кто предпочитает собрать ворота собственными силами.
✅Совместимость — подходит под стандартные роликовые каретки и направляющие балки (в комплект не входят).
В комплект входит
Элементы рамы ворот из Т-образного профиля;
Усилительные перемычки
Техническая схема сборки;
Назначение
Комплект подходит для монтажа откатных ворот любой сложности — как бытовых, так и промышленного назначения — и обеспечивает основу для дальнейшего оснащения роликовыми механизмами и автоматиками.
